|
|
 |
 |
 |
 |
Grundrisse
|
Erdgeschoss
|

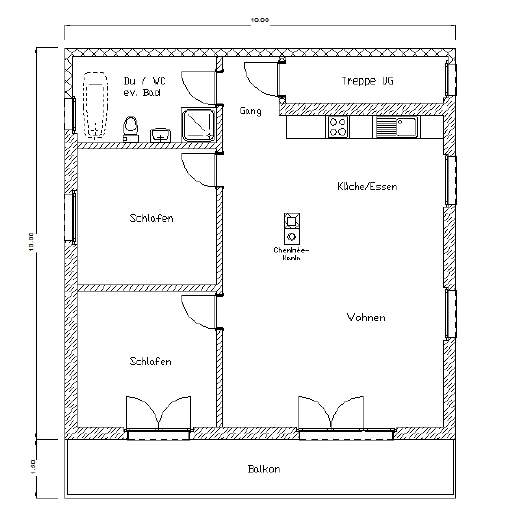
Grundriss Erdgeschoss Im Erdgeschoss finden Sie Dusche/Bad/WC, Küche, Wohnzimmer, Abstellraum sowie zwei Schlafräume und einen Balkon über die gesamte Gebäudebreite. Der fertige Rohsbau ist die optimale Basis für Ihre Gestaltungswünsche im freien Innenausbau z.B. fürs Wohnen, Küche, Bad oder eine optionale Wendeltreppe ins OG.

|
Nach oben
|
Ober-/Dachgeschoss
|

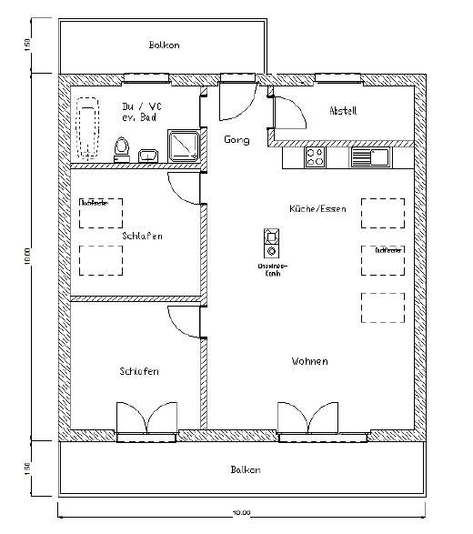
Ober-/Dachgeschoss mit schöner Galerie Im Obergeschoss finden Sie Dusche/Bad/WC, Küche, Wohnzimmer, Abstellraum sowie zwei Schlafräume und einen Balkon über die gesamte Gebäudebreite sowie einen Balkon in nordöstlicher Richtung. Der fertige Rohbau ist die optimale Basis für Ihre Gestaltungswünsche im Innenausbau z.B. fürs Wohnen, Küche oder Bad.

|
Nach oben
|
Untergeschoss
|

Kellergeschoss: Garage, Bastel-/Wellnessbereich Im Kellergeschoss mit einer Höhe von rund 3 Metern finden Sie Heizraum/Waschen, Garage (1-2 Autos) und die Möglicheiten für eine Bastel- oder Wellnessecke.

|
Nach oben
|
|
 |